Capannone in vendita

Cesena, via borello - Borello
€ 170.000
1 locale 1 locale
215 Mq 215 Mq
1 bagno 1 bagno

Capannone in vendita

Cesena, via borello - Borello

Descrizione annuncio

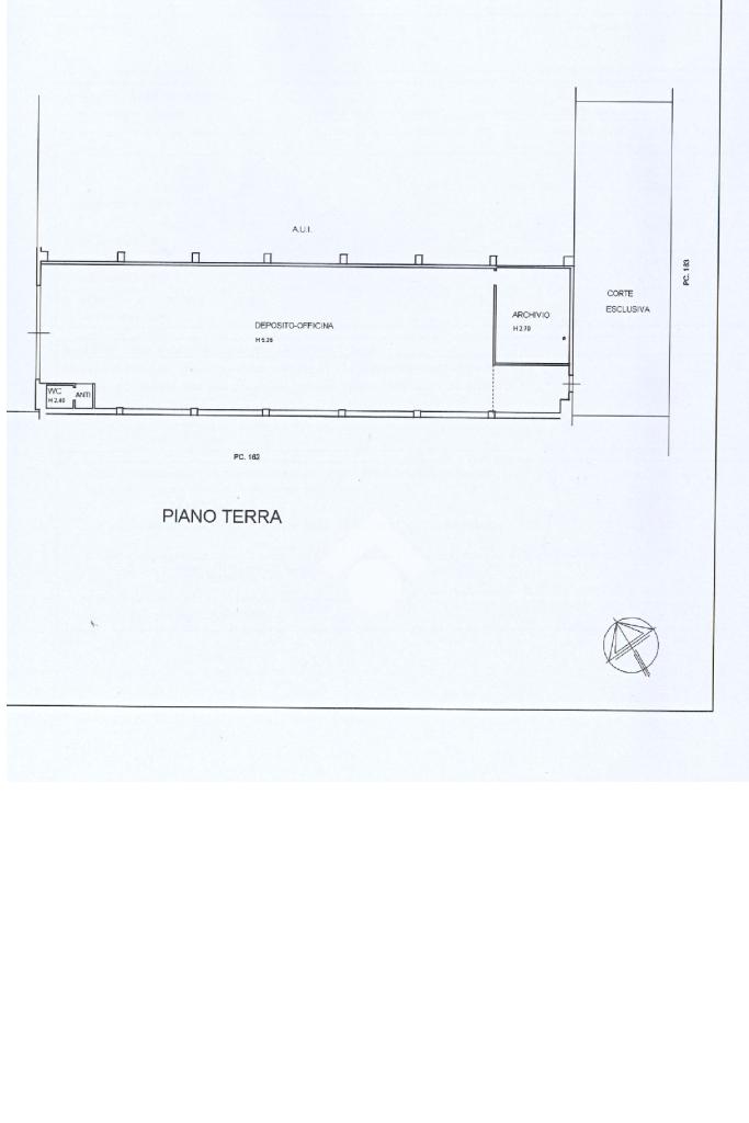
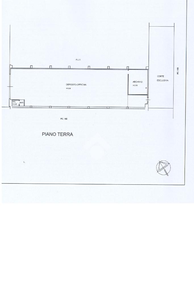
Borello : Proponiamo in vendita capannone artigianale di circa 215 mq con ingresso indipendente su strada . Il capannone si trova in zona artigianale con corte esterna esclusiva di circa 100 mq con ingresso indipendente su strada. Il capannone e' dotato di portone industriale di dimensioni 5m x 4m totalmente apribile a fisarmonica per l'ingresso dei mezzi , bilici compresi e merci. L' altezza del capannone e' di 6,25 mq con presenza di carroponte a norma con portata di 30 tonnellate .L' impianto elettrico a norma e dotazione di corrente trifasica 380w .Presenza di piccolo ufficio bagno ed antibagno .

Ideale per attivita' artigianale , deposito e logistica.

Mostra tutto

Nelle vicinanze

Trasporto pubblico Trasporto pubblico
Trasporto pubblico
120 m
Bar Bar
Bar Romagna
1,0 Km
Ristoranti Ristoranti
Da Lucio Ristorante
350 m
Mostra tutto

Caratteristiche

Rif.:
61206957
Piano:
1 di 1 (Piano terra con giardino)
Condizionamento:
Assente
Ascensore:
No
Riscaldamento:
Autonomo
Giardino:
Privato e Condominiale
Mostra tutto
Prezzo Prezzo
€ 170.000
Rata mutuo Rata mutuo
€ 807 / mese
Spese annue Spese annue
€ 0
Proponi il tuo prezzoProponi il tuo prezzo

Altre caratteristiche

Descrizione dei locali
Bagno antibagno

Classe Energetica

Questo immobile è esente da classe energetica
Anno di costruzione:
1980
Riscaldamento:
Autonomo
Tipo impianto:
Ad aria
Tipo alimentazione:
Metano

Ti interessa visionare l'immobile?

Fissa un appuntamento  Fissa un appuntamento

Richiedi informazioni

Clicca su Leggi per aprire l'informativa
* Questi campi sono obbligatori

Calcola il tuo mutuo

Semplice e senza impegno
Anticipo

( % )
Mutuo

( % )

pochi semplici passi

inserisci i tuoi dati
Questionario completato
Grazie per aver richiesto un appuntamento senza impegno con un nostro Consulente del Credito e Assicurativo.

Hai inserito correttamente tutti i dati necessari e a breve riceverai una e-mail con un link da convalidare per inviare i tuoi dati.
Affiliato
Studio Cesena Industriale Srl
Prossima Apertura, 47021 Cesena (FC)
Prossima Apertura, 47021 Cesena (FC)
Zona: Cesena
Mostra su mappa
Affiliato
Studio Cesena Industriale Srl
Prossima Apertura, 47021 Cesena (FC)

2026 Tecnocasa Franchising S.p.A. - P. IVA 08365160152 - Via Monte Bianco 60/A 20089 Rozzano (MI). Ogni agenzia ha un proprio titolare ed è autonoma. Privacy policy | Policy utilizzo | Cookie policy